Facility Rentals

Facility Rentals

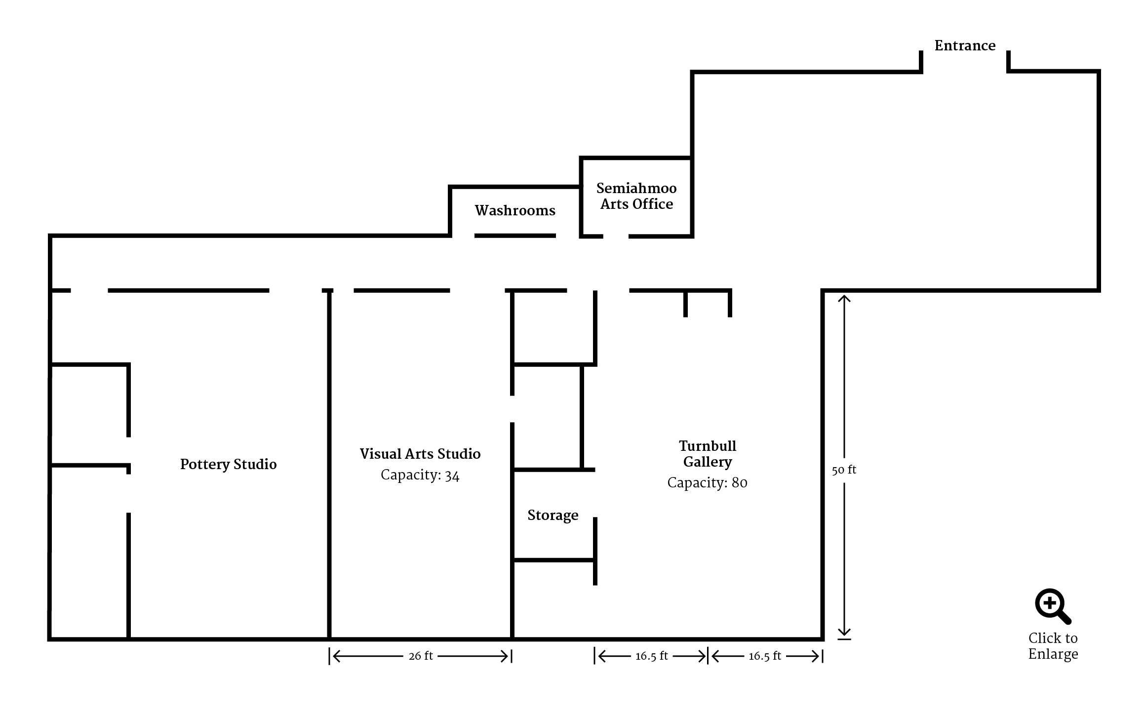
Semiahmoo Arts Society operates the arts wing at South Surrey Recreation & Arts Centre. Our facility is suitable for events and activities such as visual art exhibitions, workshops, classes, readings, rehearsals, meetings, receptions and special events.

 

Room Rental Rates

  • Group A:
    1. “Individual” Members
    2. “Family” Members
    3. Non-Profit “Organization” Members 
  • Group B:
    1. Individual Non-Members (e.g. birthday party)
    2. Non-member Non-Profit
    3. For-Profit “Organization” Members
  • Group C: Corporate “Organization” Members
  • Group D: “Corporate” Non-Members
FACILITY Room (and max capacity) Group A Group B Group C Group D
Turnbull Gallery (Max Capacity: 80)* $60/hour $95/hour $115/hour $150/hour
Funke Visual Arts Studio (Max Capacity: 34)* $35/hour $50/hour $75/hour $100/hour

Notes:

  • Set-up and take down needs to be scheduled and included in rental times.
  • Facility Attendant Fee of $50/hr may apply outside usual customer service hours.
  • Rooms rented ‘as is’–no moving of displays/artworks.
  • Are you an artist wanting to rent the walls? See our Exhibitions Page for more details.

Add-ons:

Turnbull Gallery

Visuals Arts Studio

Facility Rental Hours

  • Monday to Friday: 6:00 am – 9:00 pm
  • Saturdays: 8:00 am – 8:00 pm
  • Sundays: 8:00 am – 6:00 pm
  • For holiday hours, please email us at info@semiahmooarts.com

Amenitites

  • Free parking
  • Washrooms
  • Spacious recreation centre lobby
  • Free access to Wi-Fi

All Rooms Have

  • 9 feet ceiling height
  • Separate entrances with windows in doors
  • Wheelchair accessibility
  • Natural and fluorescent lighting, spotlights in
  • Turnbull Gallery and Multi-Purpose Room B

Cancellations

  • 75% refund if cancelled in 30 days or more
  • 50% refund if cancelled in 15 days
  • 25% refund if cancelled in 7 days

Available Furnishings

  • Podium
  • 10 rectangular banquet tables, 72″ x 30″ (6 foot) (Turnbull Gallery)
  • 10 circular tables, 60″ diameter (Turnbull Gallery)
  • 80 stacking chairs (Turnbull Gallery)
  • 10 rectangular banquet tables, 72″ x 30″ (6 foot) (Turnbull Gallery)
  • 20 stacking chairs (Funke Visual Arts Studio)